Log In
|
Register
|
Cart
Larry James Designs
Advanced Search
Browse Collections
Testimonials
About Us
Contact Us
Plan Details
|
Save Plan
|
Print Plan
|
Modify Plan
|
Reverse Plan
|
Video of Plan
|
Return to Your Search
Details
|
Save
|
See Reverse
|
3D
|
Modify
|
Back to Search
See all 5 photos and rear view
Photographs may reflect modified homes
© copyright by designer
Plan: 9519 Walden
Plan Specification
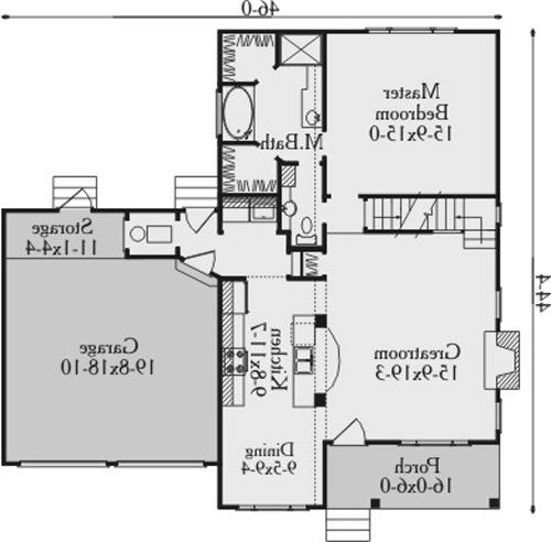
Total Square Footage:
1,586
Main Level:
1,094
Second Level:
492
Bedrooms:
3
Baths:
2 Half: 0
Garages:
2
Width/Depth:
46 ft / 44 ft
Foundation:
Basement, Crawl Space, Slab
View typical construction drawing >
© copyright by designer
First Floor Plan:
© copyright by designer
Second Floor Plan:
Similar plans:
9425
,
9518
,
9426
,
91006
Add to Favorites
Purchase Plans
House Plan Pricing
Single Build PDF - Most recommended package
$1,310.00
Digital Plans plus 5 printed sets
$1,800.00
2D electronic editable computer files
$2,280.00
More details about our plan packages
Foundation Options
Slab
$0.00
Basement
$375.00
Crawl Space
$375.00
Plan Details
General House Information
1.5
Number of Stories:
46' 0"
Width:
44' 4"
Depth:
Single
Dwelling Number:
None
Bonus Access:
Exterior Style
Old House Classics
Colonial
Southern
Traditional
Facade
Siding
Number of Rooms
3
Bedrooms:
2
Full Baths:
Finished Square Footage
1,094 Sq. Ft.
Main Level:
492 Sq. Ft.
Upper Level:
1,586 Sq. Ft.
Total:
Unfinished Square Footage
437 Sq. Ft.
Garage:
96 Sq. Ft.
Porch:
GARAGE
Side
Garage Location:
2
Garage Size:
Foundation
Basement
Crawl Space
Slab
House And Ceiling Heights
8
First Floor Ceiling:
8
Second Floor Ceiling:
22' 0"
Maximum House Height:
Framing Information
Stick
Roof Framing:
2x4
Exterior Wall Framing:
Roof Pitch
7/12
Primary:
Roof Load
30
Live:
15
Dead:
Insulation (R)
Per IRC Climate Zones
Number of Rooms
3
Bedrooms:
2
Full Baths:
Key Features
• Attached
• Basement
• Covered Front Porch
• Crawlspace
• Fireplace
• Front-entry
• Great Room
• His and Hers Master Closets
• Kitchen Island
• Laundry 1st Fl
• Master Bdrm Main Floor
• Open Floor Plan
• Peninsula / Eating Bar
• Separate Tub and Shower
• Slab
• Split Bedrooms
• Storage Space
• Walk-in Closet
Plan: 9519, 1.5 story, 1,586 total square footage
Close
It looks like you don't have a Flash player installed.
Click here
to go to Adobe download page.