Log In
|
Register
|
Cart
Larry James Designs
Advanced Search
Browse Collections
Testimonials
About Us
Contact Us
Plan Details
|
Save Plan
|
Print Plan
|
Modify Plan
|
Reverse Plan
|
Video of Plan
|
Return to Your Search
Details
|
Save
|
See Reverse
|
3D
|
Modify
|
Back to Search
See all 12 photos and rear view
Photographs may reflect modified homes
© copyright by designer
Plan: 1590 The Little Chateau
Plan Specification
Total Square Footage:
1,170
Main Level:
1,170
Bedrooms:
2
Baths:
2 Half: 0
Garages:
1
Width/Depth:
30 ft / 50 ft
Foundation:
Crawl Space Option, Slab
View typical construction drawing >
© copyright by designer
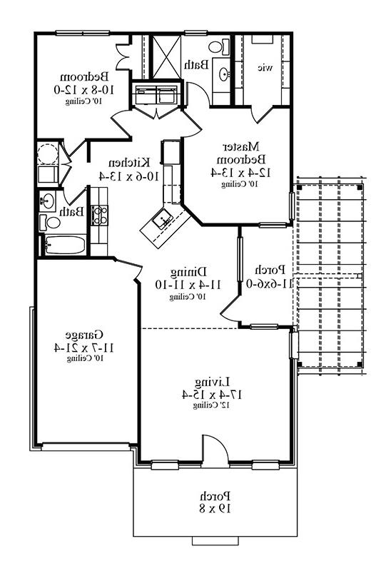
Floor Plan:
Similar plans:
0616
,
1558
,
1927
Add to Favorites
Purchase Plans
House Plan Pricing
Single Build PDF - Most recommended package
$1,260.00
Five printed sets
$1,605.00
Digital Plans plus 5 printed sets
$1,780.00
2D electronic editable computer files
$2,165.00
More details about our plan packages
Foundation Options
Slab
$0.00
Crawl Space Option
$350.00
Additional Plan Options
2x6 Exterior Wall Conversion
$325.00
Plan Details
General House Information
1
Number of Stories:
30' 0"
Width:
50' 6"
Depth:
Single
Dwelling Number:
Exterior Style
Budget
Old House Classics
Texas
French Country
Traditional
Facade
Brick/Siding
Number of Rooms
2
Bedrooms:
2
Full Baths:
Finished Square Footage
1,170 Sq. Ft.
Main Level:
1,170 Sq. Ft.
Total:
Unfinished Square Footage
330 Sq. Ft.
Garage:
150 Sq. Ft.
Porch:
GARAGE
Front
Garage Location:
1
Garage Size:
Foundation
Crawl Space Option
Slab
House And Ceiling Heights
10 & 12
First Floor Ceiling:
Framing Information
Stick
Roof Framing:
2x4
Exterior Wall Framing:
Roof Pitch
7/12
Primary:
14/12
Secondary:
Insulation (R)
Per IRC Climate Zones
Number of Rooms
2
Bedrooms:
2
Full Baths:
Key Features
• Attached
• Crawlspace
• Front-entry
• Open Floor Plan
• Peninsula / Eating Bar
• Slab
Plan: 1590, 1 story, 1,170 total square footage
Close
It looks like you don't have a Flash player installed.
Click here
to go to Adobe download page.