Log In
|
Register
|
Cart
Larry James Designs
Advanced Search
Browse Collections
Testimonials
About Us
Contact Us
Plan Details
|
Save Plan
|
Print Plan
|
Modify Plan
|
Reverse Plan
|
Video of Plan
|
Return to Your Search
Details
|
Save
|
See Reverse
|
3D
|
Modify
|
Back to Search
See all 4 photos and rear view
Photographs may reflect modified homes
© copyright by designer
Plan: 9718 Hickory II
Plan Specification
Total Square Footage:
2,622
Main Level:
1,760
Second Level:
862
Bedrooms:
3
Baths:
3 Half: 1
Garages:
0
Width/Depth:
56 ft / 46 ft
Foundation:
Basement, Crawl Space, Slab
View typical construction drawing >
© copyright by designer
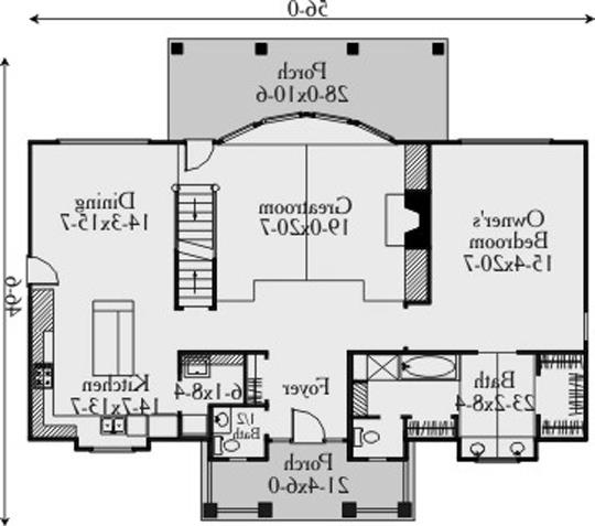
First Floor Plan:
© copyright by designer
Second Floor Plan:
Similar plans:
91096
,
9309
Add to Favorites
Purchase Plans
House Plan Pricing
Single Build PDF - Most recommended package
$1,410.00
Five printed sets
$1,760.00
Digital Plans plus 5 printed sets
$1,935.00
2D electronic editable computer files
$2,365.00
More details about our plan packages
Foundation Options
Slab
$0.00
Basement
$350.00
Crawl Space
$350.00
Additional Plan Options
Reverses house plan (Text and Dimensions are readable)
$300.00
Plan Details
General House Information
1.5
Number of Stories:
56' 0"
Width:
46' 6"
Depth:
Single
Dwelling Number:
None
Bonus Access:
Exterior Style
Mountain
Old House Classics
Vacation
Cottage
Craftsman
Traditional
Facade
Siding
Number of Rooms
3
Bedrooms:
3
Full Baths:
1
Half Baths:
Finished Square Footage
1,760 Sq. Ft.
Main Level:
862 Sq. Ft.
Upper Level:
2,622 Sq. Ft.
Total:
Unfinished Square Footage
409 Sq. Ft.
Porch:
GARAGE
0
Garage Size:
Foundation
Basement
Crawl Space
Slab
House And Ceiling Heights
9
First Floor Ceiling:
8
Second Floor Ceiling:
23' 0"
Maximum House Height:
Framing Information
Stick
Roof Framing:
2x4
Exterior Wall Framing:
Roof Pitch
10/12
Primary:
Roof Load
30
Live:
15
Dead:
Insulation (R)
Per IRC Climate Zones
Number of Rooms
3
Bedrooms:
3
Full Baths:
1
Half Baths:
Key Features
• Basement
• Country Kitchen
• Covered Front Porch
• Covered Rear Porch
• Crawlspace
• Double Vanity Sink
• Fireplace
• Foyer
• Front Porch
• Great Room
• Home Office
• Kitchen Island
• Laundry 1st Fl
• Loft / Balcony
• Master Bdrm Main Floor
• None
• Nursery Room
• Open Floor Plan
• Peninsula / Eating Bar
• Rear Porch
• Separate Tub and Shower
• Slab
• Suited for corner lot
• Suited for view lot
• Vaulted Ceilings
• Walk-in Closet
Plan: 9718, 1.5 story, 2,622 total square footage
Close
It looks like you don't have a Flash player installed.
Click here
to go to Adobe download page.