Log In
|
Register
|
Cart
Larry James Designs
Advanced Search
Browse Collections
Testimonials
About Us
Contact Us
Plan Details
|
Save Plan
|
Print Plan
|
Modify Plan
|
Reverse Plan
|
Video of Plan
|
Return to Your Search
Details
|
Save
|
See Reverse
|
3D
|
Modify
|
Back to Search
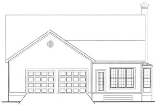
See all 3 photos and rear view
Photographs may reflect modified homes
© copyright by designer
Plan: 9706 Rosedale II
Plan Specification
Total Square Footage:
2,071
Main Level:
2,071
Bonus:
1,007
Bedrooms:
3
Baths:
2 Half: 0
Garages:
2
Width/Depth:
45 ft / 85 ft
Foundation:
Basement, Crawl Space, Slab
View typical construction drawing >
© copyright by designer
First Floor Plan:
Similar plans:
91078
,
9204
,
9908
,
9208
Add to Favorites
Purchase Plans
House Plan Pricing
Single Build PDF - Most recommended package
$1,405.00
Digital Plans plus 5 printed sets
$1,915.00
2D electronic editable computer files
$2,415.00
More details about our plan packages
Foundation Options
Slab
$0.00
Basement
$375.00
Crawl Space
$375.00
Additional Plan Options
Reverses house plan (Text and Dimensions are readable)
$300.00
Plan Details
General House Information
1
Number of Stories:
45' 0"
Width:
85' 8"
Depth:
Single
Dwelling Number:
1st Floor
Bonus Access:
Exterior Style
Florida
Mountain
Old House Classics
Vacation
Cottage
Southern
Traditional
Facade
Siding
Number of Rooms
3
Bedrooms:
2
Full Baths:
Finished Square Footage
2,071 Sq. Ft.
Main Level:
2,071 Sq. Ft.
Total:
Unfinished Square Footage
GARAGE
Rear
Garage Location:
2
Garage Size:
Foundation
Basement
Crawl Space
Slab
House And Ceiling Heights
9
First Floor Ceiling:
23' 0"
Maximum House Height:
Framing Information
Stick
Roof Framing:
2x6
Exterior Wall Framing:
Roof Pitch
8/12
Primary:
Roof Load
30
Live:
15
Dead:
Insulation (R)
Per IRC Climate Zones
Number of Rooms
3
Bedrooms:
2
Full Baths:
Key Features
• Attached
• Basement
• Covered Front Porch
• Crawlspace
• Double Vanity Sink
• Fireplace
• Front Porch
• Great Room
• Laundry 1st Fl
• Master Bdrm Main Floor
• Nook / Breakfast Area
• Open Floor Plan
• Peninsula / Eating Bar
• Rear-entry
• Screened Porch/Sunroom
• Separate Tub and Shower
• Slab
• Split Bedrooms
• Unfinished Space
• Walk-in Closet
Plan: 9706, 1 story, 2,071 total square footage
Close
It looks like you don't have a Flash player installed.
Click here
to go to Adobe download page.