Log In
|
Register
|
Cart
Larry James Designs
Advanced Search
Browse Collections
Testimonials
About Us
Contact Us
Plan Details
|
Save Plan
|
Print Plan
|
Modify Plan
|
Reverse Plan
|
Video of Plan
|
Return to Your Search
Details
|
Save
|
See Reverse
|
3D
|
Modify
|
Back to Search
See all 4 photos and rear view
Photographs may reflect modified homes
© copyright by designer
Plan: 9421 Garlington
Plan Specification
Total Square Footage:
1,792
Main Level:
1,792
Bedrooms:
3
Baths:
2 Half: 0
Garages:
2
Width/Depth:
56 ft / 70 ft
Foundation:
Basement, Crawl Space, Slab
View typical construction drawing >
© copyright by designer
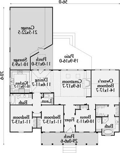
First Floor Plan:
Similar plans:
9315
Add to Favorites
Purchase Plans
House Plan Pricing
Single Build PDF - Most recommended package
$1,260.00
Five printed sets
$1,605.00
Digital Plans plus 5 printed sets
$1,780.00
2D electronic editable computer files
$2,165.00
More details about our plan packages
Foundation Options
Slab
$0.00
Basement
$350.00
Crawl Space
$350.00
Additional Plan Options
Reverses house plan (Text and Dimensions are readable)
$300.00
Plan Details
General House Information
1
Number of Stories:
56' 0"
Width:
70' 6"
Depth:
Single
Dwelling Number:
None
Bonus Access:
Exterior Style
Old House Classics
Country
Southern
Traditional
Facade
Siding
Number of Rooms
3
Bedrooms:
2
Full Baths:
Finished Square Footage
1,792 Sq. Ft.
Main Level:
1,792 Sq. Ft.
Total:
Unfinished Square Footage
597 Sq. Ft.
Garage:
298 Sq. Ft.
Porch:
GARAGE
Rear
Garage Location:
2
Garage Size:
Foundation
Basement
Crawl Space
Slab
House And Ceiling Heights
8
First Floor Ceiling:
23' 0"
Maximum House Height:
Framing Information
Stick
Roof Framing:
2x4
Exterior Wall Framing:
Roof Pitch
8/12
Primary:
Roof Load
30
Live:
15
Dead:
Insulation (R)
Per IRC Climate Zones
Number of Rooms
3
Bedrooms:
2
Full Baths:
Key Features
• Attached
• Basement
• Bonus Room
• Covered Front Porch
• Covered Rear Porch
• Crawlspace
• Fireplace
• Foyer
• Great Room
• His and Hers Master Closets
• Home Office
• Laundry 1st Fl
• Open Floor Plan
• Peninsula / Eating Bar
• Separate Tub and Shower
• Side-entry
• Slab
• Split Bedrooms
• Storage Space
• Suited for corner lot
• Vaulted Ceilings
• Walk-in Closet
Plan: 9421, 1 story, 1,792 total square footage
Close
It looks like you don't have a Flash player installed.
Click here
to go to Adobe download page.