Log In
|
Register
|
Cart
Larry James Designs
Advanced Search
Browse Collections
Testimonials
About Us
Contact Us
Plan Details
|
Save Plan
|
Print Plan
|
Modify Plan
|
Reverse Plan
|
Video of Plan
|
Return to Your Search
Details
|
Save
|
See Reverse
|
3D
|
Modify
|
Back to Search
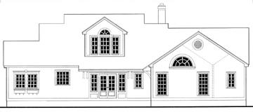
See all 4 photos and rear view
Photographs may reflect modified homes
© copyright by designer
Plan: 9409 Amherst
Plan Specification
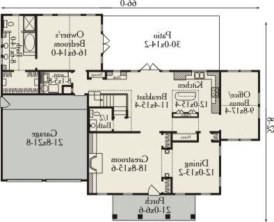
Total Square Footage:
2,475
Main Level:
1,768
Second Level:
707
Bedrooms:
3
Baths:
2 Half: 1
Garages:
2
Width/Depth:
66 ft / 52 ft
Foundation:
Basement, Crawl Space, Slab
View typical construction drawing >
© copyright by designer
First Floor Plan:
© copyright by designer
Second Floor Plan:
Similar plans:
9410
,
9519
,
9311
Add to Favorites
Purchase Plans
House Plan Pricing
Single Build PDF - Most recommended package
$1,360.00
Five printed sets
$1,705.00
Digital Plans plus 5 printed sets
$1,880.00
2D electronic editable computer files
$2,315.00
More details about our plan packages
Foundation Options
Slab
$0.00
Basement
$350.00
Crawl Space
$350.00
Plan Details
General House Information
1.5
Number of Stories:
66' 0"
Width:
52' 8"
Depth:
Single
Dwelling Number:
2nd Floor
Bonus Access:
Exterior Style
Old House Classics
Cottage
Southern
Traditional
Facade
Siding
Number of Rooms
3
Bedrooms:
2
Full Baths:
1
Half Baths:
Finished Square Footage
1,768 Sq. Ft.
Main Level:
707 Sq. Ft.
Upper Level:
2,475 Sq. Ft.
Total:
Unfinished Square Footage
490 Sq. Ft.
Garage:
137 Sq. Ft.
Porch:
GARAGE
Front
Garage Location:
2
Garage Size:
Foundation
Basement
Crawl Space
Slab
House And Ceiling Heights
9
First Floor Ceiling:
8
Second Floor Ceiling:
23' 0"
Maximum House Height:
Framing Information
Stick
Roof Framing:
2x4
Exterior Wall Framing:
Roof Pitch
8/12
Primary:
Roof Load
30
Live:
15
Dead:
Insulation (R)
Per IRC Climate Zones
Number of Rooms
3
Bedrooms:
2
Full Baths:
1
Half Baths:
Key Features
• Attached
• Basement
• Bonus Room
• Covered Front Porch
• Crawlspace
• Dining Room
• Double Vanity Sink
• Fireplace
• Front-entry
• Great Room
• Home Office
• Kitchen Island
• Laundry 1st Fl
• Master Bdrm Main Floor
• Nook / Breakfast Area
• Peninsula / Eating Bar
• Rec Room
• Separate Tub and Shower
• Slab
• Split Bedrooms
• Suited for view lot
• Vaulted Ceilings
• Walk-in Closet
• Walk-in Pantry
Plan: 9409, 1.5 story, 2,475 total square footage
Close
It looks like you don't have a Flash player installed.
Click here
to go to Adobe download page.