Log In
|
Register
|
Cart
Larry James Designs
Advanced Search
Browse Collections
Testimonials
About Us
Contact Us
Plan Details
|
Save Plan
|
Print Plan
|
Modify Plan
|
Reverse Plan
|
Video of Plan
|
Return to Your Search
Details
|
Save
|
See Reverse
|
3D
|
Modify
|
Back to Search
See all 5 photos and rear view
Photographs may reflect modified homes
© copyright by designer
Plan: 91096 Langston
Plan Specification
Total Square Footage:
2,836
Main Level:
2,069
Second Level:
767
Bedrooms:
4
Baths:
3 Half: 0
Garages:
2
Width/Depth:
87 ft / 55 ft
Foundation:
Basement, Crawl Space, Slab
View typical construction drawing >
© copyright by designer
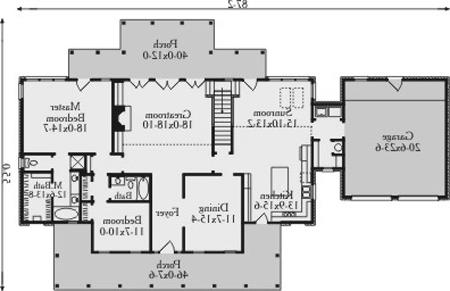
First Floor Plan:
© copyright by designer
Second Floor Plan:
Similar plans:
9309
,
9718
Add to Favorites
Purchase Plans
House Plan Pricing
Single Build PDF - Most recommended package
$1,410.00
Five printed sets
$1,760.00
Digital Plans plus 5 printed sets
$1,935.00
2D electronic editable computer files
$2,365.00
More details about our plan packages
Foundation Options
Slab
$0.00
Basement
$350.00
Crawl Space
$350.00
Additional Plan Options
Reverses house plan (Text and Dimensions are readable)
$300.00
Plan Details
General House Information
1.5
Number of Stories:
87' 2"
Width:
55' 0"
Depth:
Single
Dwelling Number:
None
Bonus Access:
Exterior Style
Old House Classics
Farmhouse
Southern
Traditional
Facade
Brick/Siding
Number of Rooms
4
Bedrooms:
3
Full Baths:
Finished Square Footage
2,069 Sq. Ft.
Main Level:
767 Sq. Ft.
Upper Level:
2,836 Sq. Ft.
Total:
Unfinished Square Footage
550 Sq. Ft.
Garage:
782 Sq. Ft.
Porch:
GARAGE
Side
Garage Location:
2
Garage Size:
Foundation
Basement
Crawl Space
Slab
House And Ceiling Heights
9
First Floor Ceiling:
8
Second Floor Ceiling:
24' 0"
Maximum House Height:
Framing Information
Stick
Roof Framing:
2x4
Exterior Wall Framing:
Roof Pitch
9/12
Primary:
Roof Load
30
Live:
15
Dead:
Insulation (R)
Per IRC Climate Zones
Number of Rooms
4
Bedrooms:
3
Full Baths:
Key Features
• Attached
• Basement
• Covered Front Porch
• Covered Rear Porch
• Crawlspace
• Double Vanity Sink
• Fireplace
• Foyer
• Front-entry
• Great Room
• Kitchen Island
• Laundry 1st Fl
• Loft / Balcony
• Master Bdrm Main Floor
• Rec Room
• Screened Porch/Sunroom
• Separate Tub and Shower
• Slab
• Suited for view lot
• Vaulted Ceilings
• Walk-in Closet
• Wraparound Porch
Plan: 91096, 1.5 story, 2,836 total square footage
Close
It looks like you don't have a Flash player installed.
Click here
to go to Adobe download page.