Log In
|
Register
|
Cart
Larry James Designs
Advanced Search
Browse Collections
Testimonials
About Us
Contact Us
Plan Details
|
Save Plan
|
Print Plan
|
Modify Plan
|
Reverse Plan
|
Video of Plan
|
Return to Your Search
Details
|
Save
|
See Reverse
|
3D
|
Modify
|
Back to Search
See all 11 photos and rear view
Photographs may reflect modified homes
© copyright by designer
Plan: 1974 French Quarter
Plan Specification
Total Square Footage:
3,507
Main Level:
3,507
Bedrooms:
4
Baths:
3 Half: 0
Garages:
2
Width/Depth:
78 ft / 80 ft
Foundation:
Basement Option, Crawl Space Option, Slab
View typical construction drawing >
© copyright by designer
Main Floor Plan:
© copyright by designer
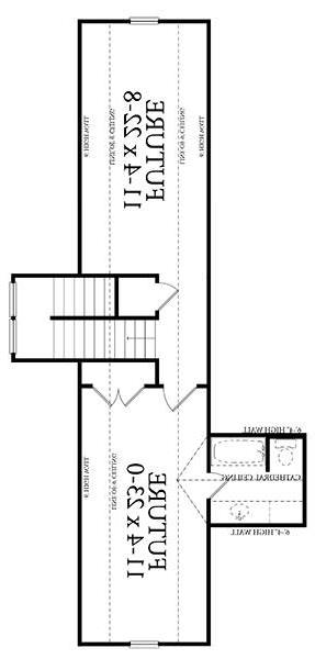
Future Second Floor:
Similar plans:
3273 Grand Prairie
,
3073 Jasmine
Add to Favorites
Purchase Plans
House Plan Pricing
Single Build PDF - Most recommended package
$1,560.00
Five printed sets
$1,905.00
Digital Plans plus 5 printed sets
$2,080.00
2D electronic editable computer files
$2,515.00
More details about our plan packages
Foundation Options
Slab
$0.00
Basement Option
$350.00
Crawl Space Option
$350.00
Additional Plan Options
Reverses house plan (Text and Dimensions are readable)
$300.00
Plan Details
General House Information
1
Number of Stories:
78' 4"
Width:
80' 6"
Depth:
Single
Dwelling Number:
2nd Floor
Bonus Access:
Exterior Style
Louisiana Style
Luxury
Country
Farmhouse
French Country
Modern Farmhouse
Southern
Traditional
Number of Rooms
4
Bedrooms:
3
Full Baths:
Finished Square Footage
3,507 Sq. Ft.
Main Level:
3,507 Sq. Ft.
Total:
Unfinished Square Footage
676 Sq. Ft.
Garage:
935 Sq. Ft.
Porch:
GARAGE
Front
Garage Location:
2
Garage Size:
Foundation
Basement Option
Crawl Space Option
Slab
House And Ceiling Heights
9
Second Floor Ceiling:
27' 2"
Maximum House Height:
Framing Information
Stick
Roof Framing:
2x4
Exterior Wall Framing:
Roof Pitch
14/12
Primary:
10/12
Secondary:
9/12
Dormer:
Insulation (R)
Per IRC Climate Zones
Number of Rooms
4
Bedrooms:
3
Full Baths:
Key Features
• Attached
• Basement
• Butler's Pantry
• Covered Front Porch
• Covered Rear Porch
• Crawlspace
• Dining Room
• Family Room
• Fireplace
• Foyer
• Great Room
• Guest Suite
• His and Hers Master Closets
• In-law Suite
• Kitchen Island
• Laundry 1st Fl
• L-Shaped
• Master Bdrm Main Floor
• Mud Room
• Nook / Breakfast Area
• Open Floor Plan
• Outdoor Kitchen
• Outdoor Living Space
• Oversized
• Pantry
• Peninsula / Eating Bar
• Separate Tub and Shower
• Side-entry
• Split Bedrooms
• Suited for view lot
• Unfinished Space
• Walk-in Closet
• Walk-in Pantry
Plan: 1974, 1 story, 3,507 total square footage
Close
It looks like you don't have a Flash player installed.
Click here
to go to Adobe download page.