Log In
|
Register
|
Cart
Larry James Designs
Advanced Search
Browse Collections
Testimonials
About Us
Contact Us
Plan Details
|
Save Plan
|
Print Plan
|
Modify Plan
|
Reverse Plan
|
Video of Plan
|
Return to Your Search
Details
|
Save
|
See Reverse
|
3D
|
Modify
|
Back to Search
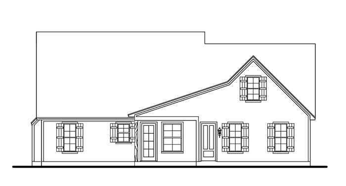
See all 5 photos and rear view
Photographs may reflect modified homes
© copyright by designer
Plan: 1730 The Waylon
Plan Specification
Total Square Footage:
1,599
Main Level:
1,599
Bedrooms:
3
Baths:
2 Half: 0
Garages:
2
Width/Depth:
59 ft / 54 ft
Foundation:
Crawl Space Option, Slab
View typical construction drawing >
© copyright by designer
Floor Plan:
Similar plans:
0314
,
1983
,
1814
,
1966
Add to Favorites
Purchase Plans
House Plan Pricing
Single Build PDF - Most recommended package
$1,260.00
Five printed sets
$1,605.00
Digital Plans plus 5 printed sets
$1,780.00
2D electronic editable computer files
$2,165.00
More details about our plan packages
Foundation Options
Slab
$0.00
Crawl Space Option
$350.00
Additional Plan Options
2x6 Exterior Wall Conversion
$325.00
Reverses house plan (Text and Dimensions are readable)
$300.00
Plan Details
General House Information
1
Number of Stories:
59' 8"
Width:
54' 3"
Depth:
Single
Dwelling Number:
Exterior Style
Budget
Builders
Cottage
Country
Craftsman
Farmhouse
French Country
Traditional
Facade
Siding
Number of Rooms
3
Bedrooms:
2
Full Baths:
Finished Square Footage
1,599 Sq. Ft.
Main Level:
1,599 Sq. Ft.
Total:
Unfinished Square Footage
565 Sq. Ft.
Garage:
415 Sq. Ft.
Porch:
GARAGE
Side
Garage Location:
2
Garage Size:
Foundation
Crawl Space Option
Slab
House And Ceiling Heights
10'
First Floor Ceiling:
27' 9"
Maximum House Height:
Framing Information
Stick
Roof Framing:
2x4
Exterior Wall Framing:
Roof Pitch
12/12
Primary:
4/12
Secondary:
Insulation (R)
Per IRC Climate Zones
Number of Rooms
3
Bedrooms:
2
Full Baths:
Key Features
• Attached
• Covered Front Porch
• Covered Rear Porch
• Crawlspace
• Double Vanity Sink
• Family Room
• Fireplace
• Front Porch
• Great Room
• Kitchen Island
• Laundry 1st Fl
• Master Bdrm Main Floor
• Open Floor Plan
• Peninsula / Eating Bar
• Rear Porch
• Separate Tub and Shower
• Side-entry
• Slab
• Split Bedrooms
• Suited for corner lot
• Suited for narrow lot
• Walk-in Closet
Plan: 1730, 1 story, 1,599 total square footage
Close
It looks like you don't have a Flash player installed.
Click here
to go to Adobe download page.