Larry James Residential Architect
Log In | Register | Cart

   
        cart
Details |  Save | See Reverse | 3D | Modify | Back to Search
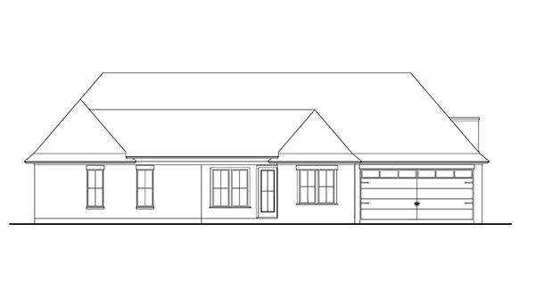
Front Elevation Rear Elevation Left Side Elevation Right Side Elevation Floor Plan
See all 5 photos and rear view
Photographs may reflect modified homes
© copyright by designer

Plan: 1655

Plan Specification
Total Square Footage: 1,672
Main Level: 1,672
Bedrooms: 3
Baths: 2 Half: 0
Garages: 2
Width/Depth: 35 ft / 72 ft
© copyright by designer 
Floor Plan:
Floor Plan
Add to Favorites
This plan is not available for online purchasing. Call 1-800-742-6672 for more information.
Plan Details
General House Information
1
Number of Stories:
35' 0"
Width:
72' 0"
Depth:
Single
Dwelling Number:
Exterior Style
Builders
Cottage
Country
Craftsman
Farmhouse
French Country
Southern
Traditional
Facade
Brick
Stucco
Number of Rooms
3
Bedrooms:
2
Full Baths:
Finished Square Footage
1,672 Sq. Ft.
Main Level:
1,672 Sq. Ft.
Total:
GARAGE
Front
Garage Location:
2
Garage Size:
House And Ceiling Heights
10
First Floor Ceiling:
Framing Information
Stick
Roof Framing:
2x4
Exterior Wall Framing:
Insulation (R)
Per IRC Climate Zones
Number of Rooms
3
Bedrooms:
2
Full Baths:
Key Features
• Front-entry
• Side-entry
• Slab
• Suited for corner lot
• Suited for narrow lot