Log In
|
Register
|
Cart
Larry James Designs
Advanced Search
Browse Collections
Testimonials
About Us
Contact Us
Plan Details
|
Save Plan
|
Print Plan
|
Modify Plan
|
Reverse Plan
|
Video of Plan
|
Return to Your Search
Details
|
Save
|
See Reverse
|
3D
|
Modify
|
Back to Search
See all 5 photos and rear view
Photographs may reflect modified homes
© copyright by designer
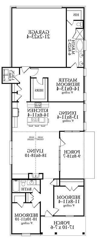
Plan: 16116
Plan Specification
Total Square Footage:
1,892
Main Level:
1,892
Bedrooms:
3
Baths:
2 Half: 0
Garages:
2
Width/Depth:
33 ft / 98 ft
View typical construction drawing >
© copyright by designer
Floor Plan:
Add to Favorites
This plan is not available for online purchasing. Call 1-800-742-6672 for more information.
Plan Details
General House Information
1
Number of Stories:
33' 4"
Width:
98' 0"
Depth:
Single
Dwelling Number:
Exterior Style
Builders
Facade
Brick
Stucco
Number of Rooms
3
Bedrooms:
2
Full Baths:
Finished Square Footage
1,892 Sq. Ft.
Main Level:
1,892 Sq. Ft.
Total:
GARAGE
Rear
Garage Location:
2
Garage Size:
House And Ceiling Heights
9'
First Floor Ceiling:
Framing Information
Stick
Roof Framing:
2x4
Exterior Wall Framing:
Roof Pitch
8/12
Primary:
14/12
Secondary:
Insulation (R)
Per IRC Climate Zones
Number of Rooms
3
Bedrooms:
2
Full Baths:
Key Features
• Slab
Plan: 16116, 1 story, 1,892 total square footage
Close
It looks like you don't have a Flash player installed.
Click here
to go to Adobe download page.