Log In
|
Register
|
Cart
Larry James Designs
Advanced Search
Browse Collections
Testimonials
About Us
Contact Us
Plan Details
|
Save Plan
|
Print Plan
|
Modify Plan
|
Reverse Plan
|
Video of Plan
|
Return to Your Search
Details
|
Save
|
See Reverse
|
3D
|
Modify
|
Back to Search
See all 6 photos and rear view
Photographs may reflect modified homes
© copyright by designer
Plan: 1599 Elmwood
Plan Specification
Total Square Footage:
1,819
Main Level:
1,819
Bedrooms:
3
Baths:
2 Half: 0
Garages:
2
Width/Depth:
30 ft / 90 ft
Foundation:
Slab
View typical construction drawing >
© copyright by designer
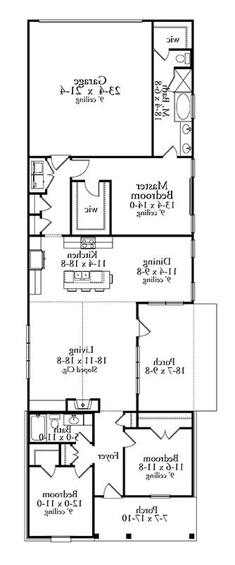
Floor Plan:
Similar plans:
1593
,
1594
,
1595
Add to Favorites
Purchase Plans
House Plan Pricing
Single Build PDF - Most recommended package
$1,260.00
Five printed sets
$1,605.00
Digital Plans plus 5 printed sets
$1,780.00
2D electronic editable computer files
$2,165.00
More details about our plan packages
Foundation Options
Slab
$0.00
Plan Details
General House Information
1
Number of Stories:
30' 0"
Width:
90' 6"
Depth:
Single
Dwelling Number:
Exterior Style
Budget
Builders
Country
Craftsman
French Country
Southern
Traditional
Facade
Siding/Brick
Stucco
Number of Rooms
3
Bedrooms:
2
Full Baths:
Finished Square Footage
1,819 Sq. Ft.
Main Level:
1,819 Sq. Ft.
Total:
Unfinished Square Footage
513 Sq. Ft.
Garage:
315 Sq. Ft.
Porch:
GARAGE
Rear
Garage Location:
2
Garage Size:
Foundation
Slab
House And Ceiling Heights
9
First Floor Ceiling:
23' 3"
Maximum House Height:
Framing Information
Stick
Roof Framing:
2x4
Exterior Wall Framing:
Roof Pitch
14/12
Primary:
8/12
Secondary:
Insulation (R)
Per IRC Climate Zones
Number of Rooms
3
Bedrooms:
2
Full Baths:
Key Features
• Attached
• Basement
• Country Kitchen
• Covered Front Porch
• Crawlspace
• Double Vanity Sink
• Fireplace
• Foyer
• Front Porch
• Great Room
• His and Hers Master Closets
• Kitchen Island
• Laundry 1st Fl
• Master Bdrm Main Floor
• Open Floor Plan
• Peninsula / Eating Bar
• Rear-entry
• Separate Tub and Shower
• Slab
• Split Bedrooms
• Suited for narrow lot
• Vaulted Ceilings
• Walk-in Closet
Plan: 1599, 1 story, 1,819 total square footage
Close
It looks like you don't have a Flash player installed.
Click here
to go to Adobe download page.