Log In
|
Register
|
Cart
Larry James Designs
Advanced Search
Browse Collections
Testimonials
About Us
Contact Us
Plan Details
|
Save Plan
|
Print Plan
|
Modify Plan
|
Reverse Plan
|
Video of Plan
|
Return to Your Search
Details
|
Save
|
See Reverse
|
3D
|
Modify
|
Back to Search
See all 21 photos and rear view
Photographs may reflect modified homes
© copyright by designer
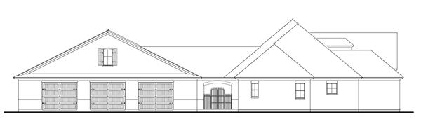
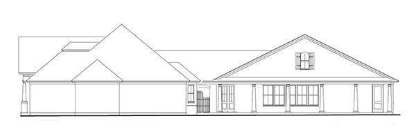
Plan: 1598 Stephens
Plan Specification
Total Square Footage:
4,110
Main Level:
4,110
Bedrooms:
3
Baths:
3 Half: 1
Garages:
3
Width/Depth:
105 ft / 111 ft
Foundation:
Slab
View typical construction drawing >
© copyright by designer
Floor Plan:
Similar plans:
0820
,
1881
,
1838
Add to Favorites
Purchase Plans
House Plan Pricing
Single Build PDF - Most recommended package
$1,560.00
Five printed sets
$1,905.00
Digital Plans plus 5 printed sets
$2,080.00
2D electronic editable computer files
$2,515.00
More details about our plan packages
Foundation Options
Slab
$0.00
Plan Details
General House Information
1
Number of Stories:
105' 8"
Width:
111' 0"
Depth:
Single
Dwelling Number:
None
Bonus Access:
Exterior Style
Builders
Luxury
Cottage
Craftsman
French Country
Ranch
Southern
Traditional
Facade
Brick
Stucco/Stone
Number of Rooms
3
Bedrooms:
3
Full Baths:
1
Half Baths:
Finished Square Footage
4,110 Sq. Ft.
Main Level:
4,110 Sq. Ft.
Total:
Unfinished Square Footage
1274 Sq. Ft.
Garage:
107 Sq. Ft.
Storage:
1704 Sq. Ft.
Porch:
GARAGE
Side
Garage Location:
3
Garage Size:
Foundation
Slab
House And Ceiling Heights
10
First Floor Ceiling:
Framing Information
Stick
Roof Framing:
2x6
Exterior Wall Framing:
Roof Pitch
10/12
Primary:
6/12
Secondary:
Insulation (R)
Per IRC Climate Zones
Number of Rooms
3
Bedrooms:
3
Full Baths:
1
Half Baths:
Key Features
• Arches
• Breezeway
• Country Kitchen
• Covered Front Porch
• Covered Rear Porch
• Crawlspace
• Detached
• Dining Room
• Double Vanity Sink
• Foyer
• Front Porch
• Great Room
• His and Hers Master Closets
• Home Office
• Kitchen Island
• Laundry 1st Fl
• Master Bdrm Main Floor
• Open Floor Plan
• Oversized
• Peninsula / Eating Bar
• Rear Porch
• Rec Room
• Separate Tub and Shower
• Side-entry
• Sitting Area
• Slab
• Split Bedrooms
• Storage Space
• Suited for view lot
• Walk-in Closet
• Walk-in Pantry
• With Living Space
• Wraparound Porch
Plan: 1598, 1 story, 4,110 total square footage
Close
It looks like you don't have a Flash player installed.
Click here
to go to Adobe download page.