Log In
|
Register
|
Cart
Larry James Designs
Advanced Search
Browse Collections
Testimonials
About Us
Contact Us
Plan Details
|
Save Plan
|
Print Plan
|
Modify Plan
|
Reverse Plan
|
Video of Plan
|
Return to Your Search
Details
|
Save
|
See Reverse
|
3D
|
Modify
|
Back to Search
See all 5 photos and rear view
Photographs may reflect modified homes
© copyright by designer
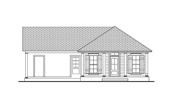
Plan: 1331
Plan Specification
Total Square Footage:
1,398
Main Level:
1,398
Bedrooms:
3
Baths:
1 Half: 0
Garages:
2
Width/Depth:
40 ft / 67 ft
Foundation:
Crawl Space
View typical construction drawing >
© copyright by designer
Floor Plan:
Similar plans:
1330
Add to Favorites
This plan is not available for online purchasing. Call 1-800-742-6672 for more information.
Plan Details
General House Information
1
Number of Stories:
40' 0"
Width:
67' 0"
Depth:
Single
Dwelling Number:
Exterior Style
Builders
Cottage
Country
Craftsman
Farmhouse
French Country
Southern
Traditional
Facade
Siding
Number of Rooms
3
Bedrooms:
1
Full Baths:
Finished Square Footage
1,398 Sq. Ft.
Main Level:
1,398 Sq. Ft.
Total:
GARAGE
Front
Garage Location:
2
Garage Size:
Foundation
Crawl Space
House And Ceiling Heights
9, 10
First Floor Ceiling:
Framing Information
Stick
Roof Framing:
2x4
Exterior Wall Framing:
Roof Pitch
8/12
Primary:
6/12
Secondary:
Insulation (R)
Per IRC Climate Zones
Number of Rooms
3
Bedrooms:
1
Full Baths:
Key Features
• Carport
• Crawlspace
• Front-entry
• Slab
• Suited for narrow lot
Plan: 1331, 1 story, 1,398 total square footage
Close
It looks like you don't have a Flash player installed.
Click here
to go to Adobe download page.