Log In
|
Register
|
Cart
Larry James Designs
Advanced Search
Browse Collections
Testimonials
About Us
Contact Us
Plan Details
|
Save Plan
|
Print Plan
|
Modify Plan
|
Reverse Plan
|
Video of Plan
|
Return to Your Search
Details
|
Save
|
See Reverse
|
3D
|
Modify
|
Back to Search
See all 9 photos and rear view
Photographs may reflect modified homes
© copyright by designer
Plan: 0409 Baton Rouge
Plan Specification
Total Square Footage:
2,062
Main Level:
2,062
Bonus:
1,346
Bedrooms:
3
Baths:
2 Half: 0
Garages:
2
Width/Depth:
64 ft / 81 ft
Foundation:
Basement, Crawl Space, Slab
View typical construction drawing >
© copyright by designer
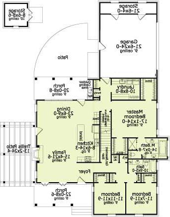
First Floor Plan:
© copyright by designer
Second Floor Plan:
Similar plans:
9813
,
9617
,
9616
,
9619
Add to Favorites
Purchase Plans
House Plan Pricing
Single Build PDF - Most recommended package
$1,360.00
Five printed sets
$1,705.00
Digital Plans plus 5 printed sets
$1,880.00
2D electronic editable computer files
$2,315.00
More details about our plan packages
Foundation Options
Slab
$0.00
Basement
$350.00
Crawl Space
$350.00
Additional Plan Options
Reverses house plan (Text and Dimensions are readable)
$300.00
Plan Details
General House Information
1
Number of Stories:
64' 2"
Width:
81' 8"
Depth:
Single
Dwelling Number:
1st Floor
Bonus Access:
Exterior Style
Old House Classics
T Shaped
Country
Craftsman
Southern
Facade
Brick/Siding
Number of Rooms
3
Bedrooms:
2
Full Baths:
Finished Square Footage
2,062 Sq. Ft.
Main Level:
2,062 Sq. Ft.
Total:
Unfinished Square Footage
GARAGE
Rear
Garage Location:
2
Garage Size:
Foundation
Basement
Crawl Space
Slab
House And Ceiling Heights
9
First Floor Ceiling:
8
Second Floor Ceiling:
23' 0"
Maximum House Height:
Framing Information
Stick
Roof Framing:
2x4
Exterior Wall Framing:
Roof Pitch
8/12
Primary:
11/12
Gable:
12/4.5
Porch:
Roof Load
30
Live:
15
Dead:
Insulation (R)
Per IRC Climate Zones
Number of Rooms
3
Bedrooms:
2
Full Baths:
Key Features
• Attached
• Basement
• Bonus Room
• Country Kitchen
• Covered Front Porch
• Covered Rear Porch
• Crawlspace
• Double Vanity Sink
• Family Room
• Fireplace
• Foyer
• Front Porch
• Great Room
• His and Hers Master Closets
• Home Office
• Kitchen Island
• Laundry 1st Fl
• Master Bdrm Main Floor
• Mud Room
• Open Floor Plan
• Rear Porch
• Side-entry
• Slab
• Split Bedrooms
• Storage Space
• Suited for corner lot
• Unfinished Space
• Walk-in Closet
• Walk-in Pantry
Plan: 0409, 1 story, 2,062 total square footage
Close
It looks like you don't have a Flash player installed.
Click here
to go to Adobe download page.